Alfa Immobilier sarl
7A, rue Emile Mark
L- 4620 Differdange
Luxembourg
  +352 27 76 70 29
+352 691 112 115
Fax : +352 27 76 47 18

Appartement à vendre 2 chambres à Rodange

  • Référence : 3537959
  • Type : Appartement
  • Chambres : 2
  • Surface habitable : +/-100,15 m2
  • Superficie terrain : +/- 0,00 Ares
  • Localisation : Rodange
  • Prix de vente : 439 000 €
  • Année de construction : 2018
  • Disponibilité : à convenir
  • neuf
  • Classe énergétique : A A
  • Classe d'isolation thermique : B
    Emission de gaz à effet de serre (GES) : 
    N_C

Description

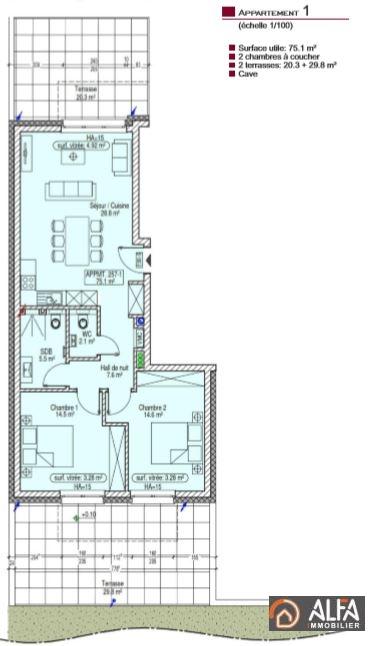
ALFA IMMOBILIER vous présente un appartement (1) neuf au rez de chaussée de la résidence Voltaire situé à Rodange proche de toutes commodités. L'appartement comprend : - Hall d'entrée - Cuisine - Salon / salle à manger avec accès sur une grande terrasse de 20.30m - Deux grandes chambres avec accès sur une autre grande terrasse - Salle de douche - WC séparé - Cave Possibilité d'acquérir un emplacement intérieur ou parklift entre 25.000' et 30.000'. Pour plus d'informations n'hésitez pas à nous contacter au 691 656 588 ou 691 656 589. Ref agence :3537959

Caractéristiques

Intérieur

Salonoui
Cuisine ouverteoui

Sanitaires

Salle de douche1
Toilette séparée1

Extérieur

Terrasse29.80 m²
Jardinoui

Autres

Ascenseuroui
Caveoui
Buanderieoui
Animaux de compagnieoui

Chauffage / climatisation

Chauffageoui
Chauffage au gazoui

Localisation